Harold Clark Simmons Hall
Through the generous donation of Harold and Annette Simmons, SMU built Harold Clark Simmons Hall. As part of the Annette Caldwell Simmons School, this 40,000 square foot facility houses several academic and community-support spaces, including a teaching design lab, student assessment lab, classrooms, the Department of Teaching and Learning, and the Budd Center for the Involvement of Communities in Education. The building’s groundbreaking occurred on September 12, 2014, and construction began soon thereafter. Learn more about the groundbreaking.
Harold Clark Simmons Hall: Architectural Renderings
Exterior Renderings

North Elevation

South Elevation

East Elevation

West Elevation
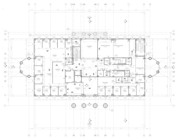
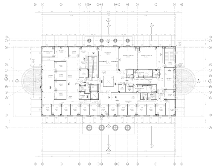
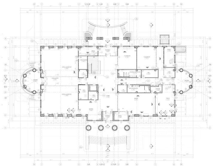
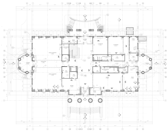
Floor Plans for Harold Clark Simmons Hall
Ground Level
Second Level

Third Level

